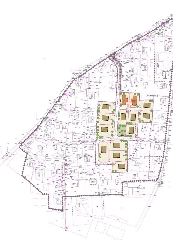
JAVNO NAZNANILO O JAVNI RAZGRNITVI DOPOLNJENEGA OSNUTKA ODLOKA O SPREMEMBAH IN DOPOLNITVAH ODLOKA O OBČINSKEM PODROBNEM PROSTORSKEM NAČRTU ZA UREDITVENO OBMOČJE ŠE-33 SSe V OBČINI ŠENČUR
JAVNO NAZNANILO O JAVNI RAZGRNITVI DOPOLNJENEGA OSNUTKA ODLOKA O SPREMEMBAH IN DOPOLNITVAH ODLOKA O OBČINSKEM PODROBNEM PROSTORSKEM NAČRTU ZA UREDITVENO OBMOČJE ŠE-33 SSe V OBČINI ŠENČUR
30. 5. 2023
Mateja M.
310
Javna razgrnitev dopolnjenega osnutka Odloka o spremembah in dopolnitvah OPPN za ureditveno območje ŠE-33 SSe v občini Šenčur bo od 5.6.2023 do 5.7.2023 na sedežu Občine Šenčur, Kranjska cesta 11, 4208 Šenčur. Gradivo bo v času javne razgrnitve dostopno tudi na spletnem naslovu: www.sencur.si na povezavi javna razgrnitev
Dokumenti, priloge
Klikni tukaj za prikaz prilog



